
Qeuto LiftsISO Certified for Quality.Experience Smooth, Reliable & Modern Vertical Travel
- Why Choose Qeuto Freight Lifts?
Qeuto Freight Lifts are designed for industrial and commercial facilities where moving heavy goods is a priority. They combine robust engineering, advanced drive systems, and safety features to ensure smooth and reliable material transport in warehouses, factories, and large commercial spaces.
- Heavy Load Capacity: Handles tons of material safely.
- Durable & Robust: Built for continuous industrial operations.
- Smooth Operation: Gearless or hydraulic drives for vibration-free transport.
- Safety Systems: Overload sensors, automatic brakes, and emergency alarms.
- ustomizable Designs: Cabin size, doors, finishes, and drive type.
- Energy Efficient: Optimized for lower operational costs.
- 24/7 Service & Support
Freight Lift
Qeuto offers a range of Freight Lifts designed to meet the heavy-duty material handling needs of industrial, commercial, and logistics facilities. Each variant is engineered for safety, durability, and smooth operation, ensuring efficient vertical transport of goods, equipment, and heavy loads.
Qeuto Freight Lifts
Qeuto Standard Freight Lifts are designed to provide reliable and efficient vertical transportation for medium-load applications in warehouses, factories, retail storage areas, and commercial facilities. Engineered for frequent daily use, these lifts combine robust construction, smooth operation, and safety features to ensure seamless handling of goods and materials.
With spacious cabins and wide doors, Standard Freight Lifts accommodate pallets, trolleys, carts, and equipment with ease, improving workflow efficiency and reducing the risk of damage to cargo. Their gearless or geared drive systems provide quiet, vibration-free rides, enhancing both operational safety and the longevity of transported goods.
Safety is a top priority. Each lift is equipped with overload protection, emergency brakes, intercom systems, and automatic rescue devices, ensuring maximum reliability during heavy-duty operations. Compliance with international safety standards (EN 81-20/50) guarantees that these lifts meet the strictest industrial safety norms.
Built for durability and low maintenance, Qeuto Standard Freight Lifts are a cost-effective solution for businesses looking to improve material handling efficiency without compromising on safety or performance. They are ideal for mid-sized industrial and commercial operations where reliability, efficiency, and smooth operation are critical.








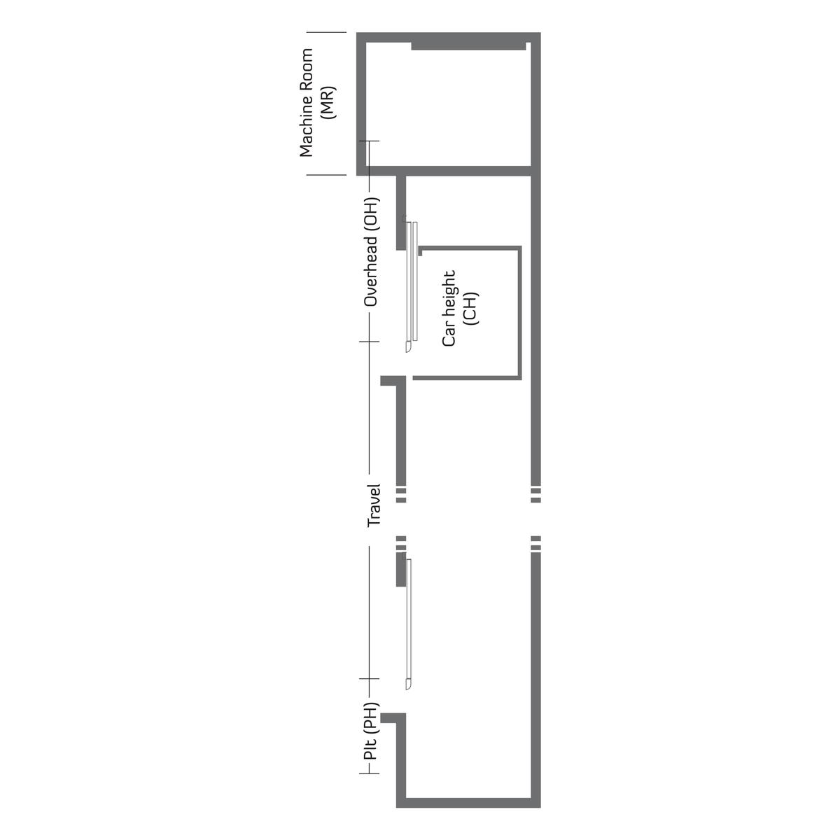
Goods Lift Dimensions



Why you should choose us?
- Expert Team Members
Our expert team at Qeuto Lifts delivers safe, innovative, and reliable lift solutions with trusted support.
- Fastest Customer Service
Fastest customer service with quick, reliable support for smooth lift operations.
- Competitive Pricing Plan
Qeuto Lifts offers reliable lift solutions at competitive prices, ensuring quality, safety, and value for every project.
Elevating Experiences – Download Brochure
Discover more about Qeuto Lifts, our wide range of elevator solutions, and why we’re trusted by 200+ clients worldwide. Get the complete brochure with all details in one place.
Let’s Elevate Your Space in Coimbatore
Qeuto Lifts, we are dedicated to delivering safe, reliable, and innovative elevator solutions. Whether you’re planning a new installation, need modernization, or require maintenance support, our expert team is ready to provide tailored solutions for your home or business.
- AddressDimond Nest, 88 Mandharalaya Garden, Sengalipalayam, Coimbatore, 641022
- Contacts.murugan@qeutolifts.com+91 80560 41058
Feel free to contact with us, we don’t spam your email



