
Qeuto LiftsISO Certified for Quality.Experience Smooth, Reliable & Efficient Commercial Lifts in Coimbatore
- Why Choose Qeuto Commercial Lifts?
Qeuto Commercial Lifts are designed to handle continuous, high-traffic usage while maintaining smooth performance, safety, and aesthetics. From functional standard lifts to customized luxury designs, our solutions deliver the right balance of durability and elegance for your business.
- Heavy-duty performance for 24/7 operation
- Large cabin sizes with flexible capacity options
- Energy-efficient, gearless drive systems
- Premium finish options for corporate appeal
- Built to international safety standards
- 24/7 Service & Support
Qeuto Commercial Lift Variants
Qeuto offers a complete range of Commercial Lift solutions tailored for diverse business needs. From standard office lifts to specialized hospital lifts and high-capacity models, each variant is designed to deliver durability, safety, and efficiency for heavy-duty operations.
Qeuto Standard Commercial Lifts
Qeuto Standard Commercial Lifts are engineered to deliver reliable, efficient, and cost-effective vertical transport for offices, retail outlets, educational institutions, and mid-rise commercial complexes. Designed for frequent daily use, these lifts combine durability, safety, and smooth performance, making them the ideal choice for businesses that demand practicality without compromising on quality.
With advanced control systems and robust mechanical design, our Standard Commercial Lifts ensure minimal downtime and long service life, even under heavy passenger traffic. The lifts feature spacious, ergonomically designed cabins that provide comfort while accommodating varying passenger loads. Their energy-efficient drive systems reduce operational costs, while quiet operation and precise leveling enhance ride comfort.
Every Standard Commercial Lift from Qeuto complies with international safety norms (EN 81-20/50) and is equipped with essential safety features including automatic rescue devices, overload protection, and emergency communication systems. Additionally, the cabins can be custom-finished with modern interiors, flooring, and lighting options to complement the aesthetics of your building.
Whether it’s a busy office environment, a retail space, or a commercial complex, Qeuto Standard Commercial Lifts provide the perfect balance of affordability, performance, and style, ensuring seamless vertical mobility for your business.


Qeuto High-Capacity Commercial Lifts
Qeuto High-Capacity Lifts are designed to meet the demanding requirements of large-scale commercial environments such as shopping malls, airports, convention centers, metro stations, and hotels. Built for heavy passenger volumes and continuous operation, these lifts combine robust engineering with advanced technology to deliver safe, fast, and efficient vertical transportation even in the busiest settings.
Equipped with high-performance drive systems and gearless traction technology, our High-Capacity Lifts ensure smooth acceleration, precise leveling, and whisper-quiet rides, regardless of load. Their spacious cabins are ergonomically designed to comfortably accommodate large groups of passengers or heavy loads, reducing wait times and improving overall traffic flow within the building.
Safety is a top priority — every lift is compliant with EN 81-20/50 safety standards and comes equipped with automatic rescue devices, emergency communication systems, overload sensors, and advanced braking technology. These features ensure complete passenger security, even during power failures or high-traffic stress conditions.
Beyond performance, Qeuto offers customizable interiors with premium finishes, lighting options, and display panels, allowing High-Capacity Lifts to blend seamlessly with the aesthetics of modern commercial architecture. They are also designed for energy efficiency, reducing long-term operating costs for businesses.
From luxury hotels welcoming guests in style to bustling shopping malls handling thousands of visitors daily, Qeuto High-Capacity Lifts provide the perfect solution for environments that demand strength, reliability, and elegance in motion.


Qeuto Custom-Designed Commercial Lifts
Qeuto Custom-Designed Commercial Lifts are the perfect choice for businesses and institutions that want their elevators to do more than just move people — they want them to reflect their brand identity, design vision, and customer experience. These lifts are fully tailored in design, size, capacity, and finish, ensuring they integrate seamlessly into your building’s architecture while meeting the unique requirements of your facility.
Whether you are looking for a luxury lift for a hotel lobby, a branded lift for a corporate office, or a specialized cabin design for a retail or commercial complex, Qeuto provides end-to-end customization. From cabin interiors, flooring, wall finishes, handrails, lighting, and control panels to door styles and display systems, every element can be designed to match your aesthetic and functional goals.
Beyond appearance, our Custom-Designed Commercial Lifts are built on the same foundation of robust engineering, energy-efficient technology, and international safety standards (EN 81-20/50) as all Qeuto products. They come equipped with advanced safety systems, smart controls, and reliable drive mechanisms, ensuring performance, security, and comfort without compromise.
Ideal for premium hotels, corporate headquarters, shopping malls, luxury showrooms, and high-end commercial spaces, these lifts create a lasting impression while delivering dependable performance in high-traffic environments. With Qeuto’s expertise, your lift becomes not only a means of transport but also a statement of style and innovation.


Qeuto Hydraulic Commercial Lifts
Qeuto Lifts, we design hydraulic commercial lifts that deliver strength, safety, and smooth performance for all types of business spaces. Engineered to handle frequent usage, these lifts are ideal for offices, shopping complexes, hotels, hospitals, and institutional buildings, ensuring reliable vertical mobility for employees, visitors, and customers.
Hydraulic technology makes our lifts efficient and adaptable, requiring less structural space compared to conventional systems. With minimal pit depth and headroom needs, Qeuto hydraulic commercial lifts can be installed easily in both new buildings and retrofit projects, making them a practical solution for a wide range of commercial applications.
Every lift is built with advanced safety systems such as overload sensors, emergency lowering functions, and automatic rescue devices. Along with smooth acceleration and quiet operation, our lifts are designed to provide a comfortable and secure experience even during peak hours of usage.
Qeuto Hydraulic Commercial Lifts also come with customizable cabin designs, energy-efficient operations, and low maintenance requirements, making them a smart investment for businesses. They not only enhance accessibility but also add long-term value by combining durability, style, and cost-effectiveness in one solution.


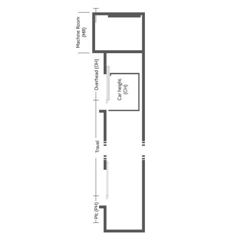
Passenger Lift Dimensions




Safety First with Qeuto Lifts
Qeuto Lifts, safety is never compromised. Every lift we design and install is equipped with international-standard safety systems to ensure a secure and worry-free ride for every user. From technology to design, we focus on creating lifts that not only move people but also protect them at every step.
Why you should choose us?
- Expert Team Members
Our expert team at Qeuto Lifts delivers safe, innovative, and reliable lift solutions with trusted support.
- Fastest Customer Service
Fastest customer service with quick, reliable support for smooth lift operations.
- Competitive Pricing Plan
Qeuto Lifts offers reliable lift solutions at competitive prices, ensuring quality, safety, and value for every project.
Elevating Experiences – Download Brochure
Discover more about Qeuto Lifts, our wide range of elevator solutions, and why we’re trusted by 200+ clients worldwide. Get the complete brochure with all details in one place.
Let’s Elevate Your Space in Coimbatore
Qeuto Lifts, we are dedicated to delivering safe, reliable, and innovative elevator solutions. Whether you’re planning a new installation, need modernization, or require maintenance support, our expert team is ready to provide tailored solutions for your home or business.
- AddressDimond Nest, 88 Mandharalaya Garden, Sengalipalayam, Coimbatore, 641022
- Contacts.murugan@qeutolifts.com+91 80560 41058
Feel free to contact with us, we don’t spam your email



